Proche de Cossonay, 3 pièces
Suisse, Morges | Chevilly
Description
Référence:
A-26-070
Pièces:
3
Nb de salles de bain:
1
Nb de chambres:
2
Surfaces:
65 m2
Style:
Moderne
État:
Neuf
Description
Vivez l'expérience d'un village de caractère ! Nous proposons à la location ce joli logement niché dans le cadre idyllique de Chevilly. Avec ses paysages ouverts et son air dynamisant, cette adresse est parfaite pour un foyer heureux et sécurisé. Bénéficiez d'infrastructures locales soignées et de la proximité de Cossonay pour votre quotidien. Saisissez l'opportunité de rejoindre l'une des communes les plus charmantes du district de Morges en 2026.
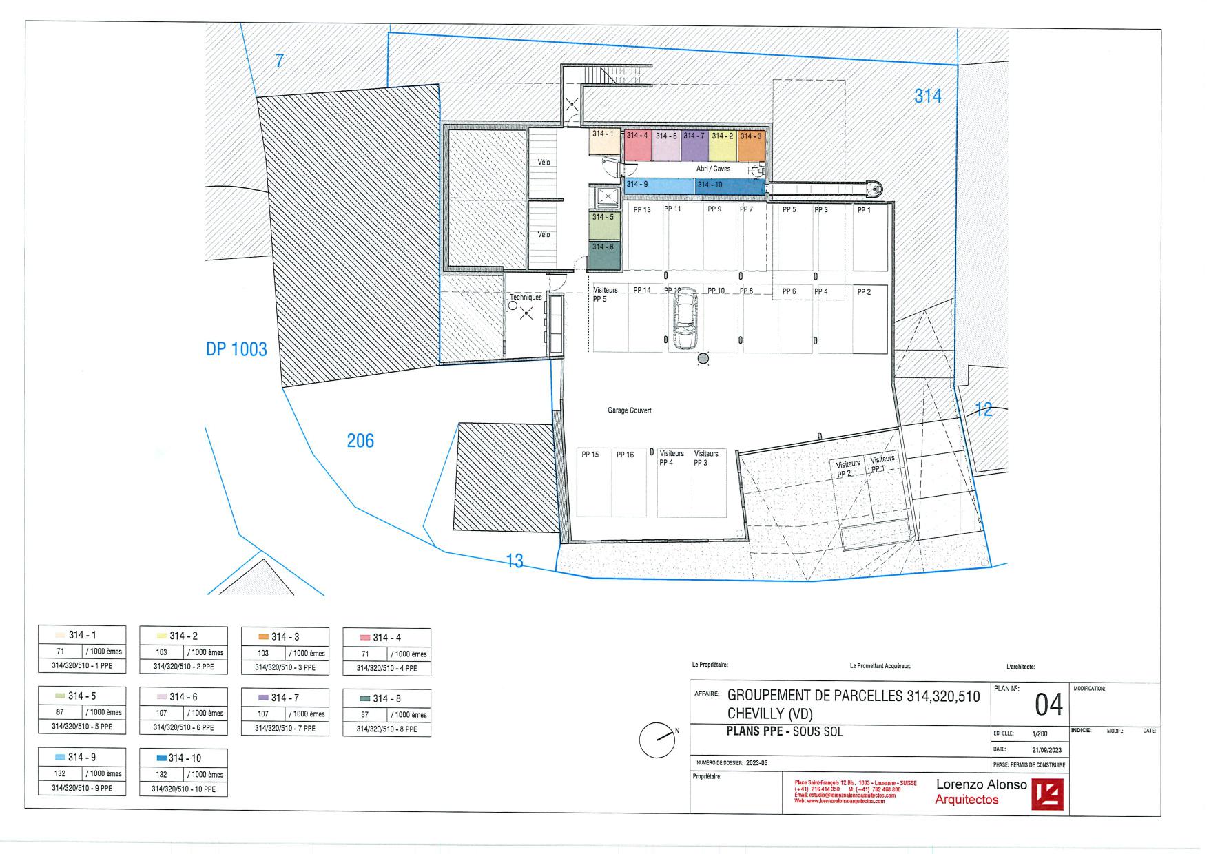
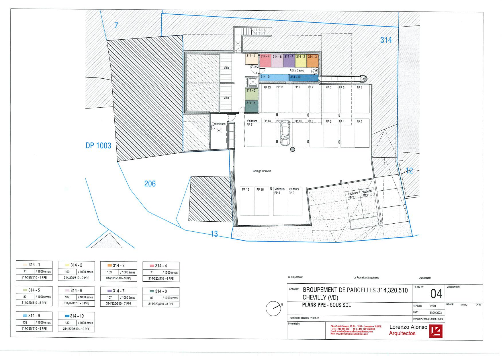
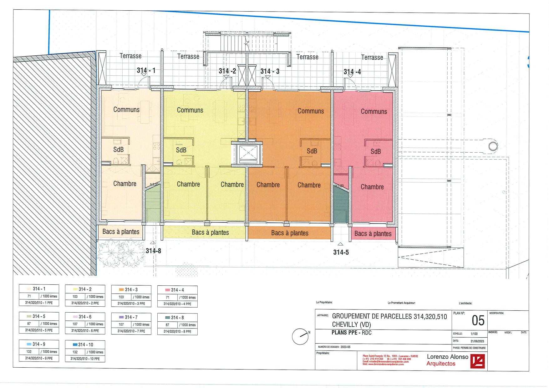
Ce joli appartement de 3 pièces (lot N° 3, plans en orange) comprenant :
- séjour / salle à manger
- cuisine ouverte entièrement agencée
- 2 chambres
- salle de bains/WC avec double lavabo
- terrasse
saura vous séduire par son aspect récent, ses finitions de choix et son côté pratique.
Une cave complète ce bien.
Chauffage PAC par le sol. Dans la PPE, des places de parc "visiteurs" et un jardin commun sont à disposition commune.
Disponible de suite ou à convenir.
Loyer mensuel net : CHF 1'900.-
Acompte de charges et frais accessoires : CHF 120.-
Deux places de parc en enfilade : CHF 200.-
Visites et renseignements : Gérances de LUZE S.A. au 021 811 22 22.
Adresse
Rue de l'Eglise 6
1316 Chevilly
Sur la carte
CHF 1'900.-
Agent immobilier
de LUZE S.A. GÉRANCES DE LUZE S.A.
E-mail
location@deluze.ch
Téléphone
+41 21 811 22 22
Contactez le courtier
